ALL PROJECTS
Individual House
Rehabilitation
Housing
Urban Design
Interior Design
Architectural Contests
Office
PHILOSOPHY
SERVICES
ABOUT US
NEWS
CONTACT
ALL PROJECTS
Individual House
Rehabilitation
Housing
Urban Design
Interior Design
Architectural Contests
Office
PHILOSOPHY
SERVICES
ABOUT US
NEWS
CONTACT
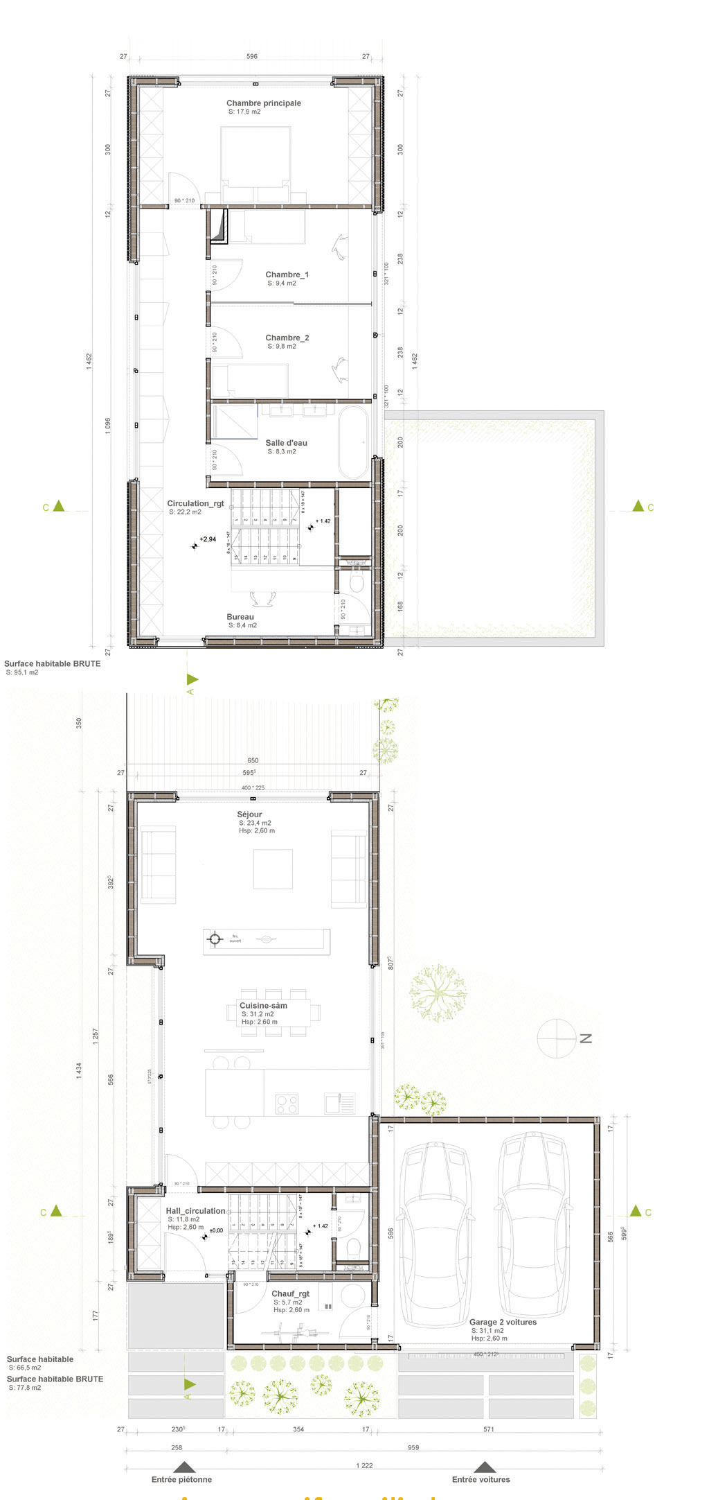
Passive house // Belgium
Single house // Strassen _2012
140 sqm
Batisam
↑
Back to top