ALL PROJECTS
Individual House
Rehabilitation
Housing
Urban Design
Interior Design
Architectural Contests
Office
PHILOSOPHY
SERVICES
ABOUT US
NEWS
CONTACT
ALL PROJECTS
Individual House
Rehabilitation
Housing
Urban Design
Interior Design
Architectural Contests
Office
PHILOSOPHY
SERVICES
ABOUT US
NEWS
CONTACT
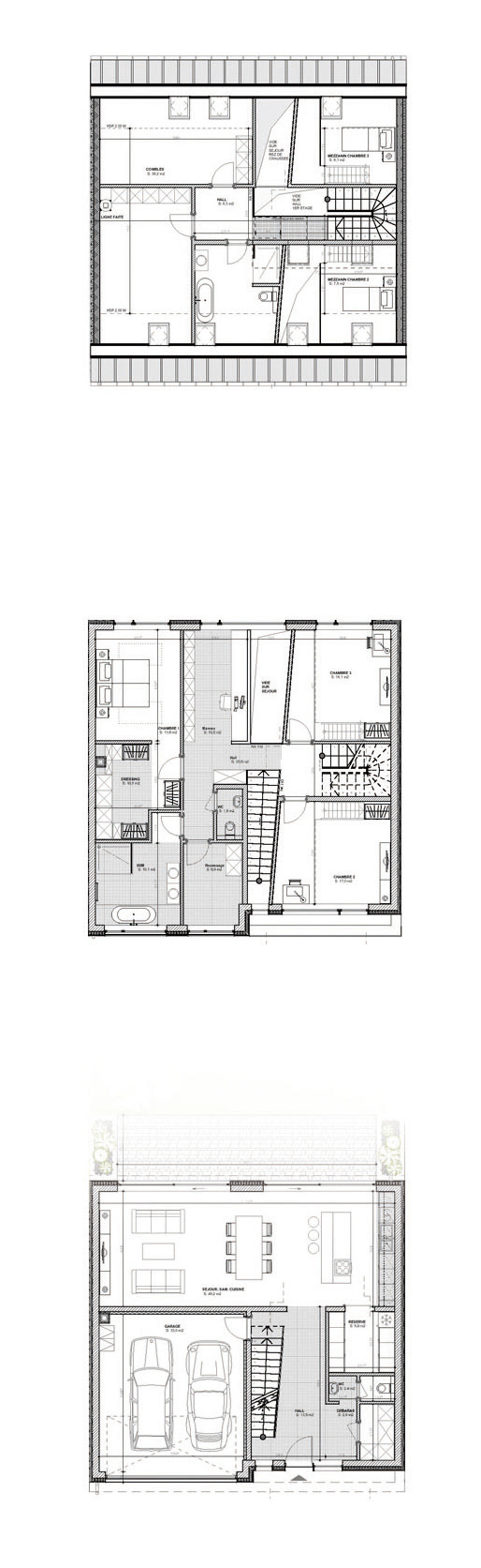
Single house // Arlon (Belgium)
Single house // Arlon (Belgium) _2011
235 sqm
Private client
↑
Back to top